100% Canadian owned & operated





The constant diameter of their radiant heating cables makes securement into uncoupling membrane quick and easy!
WarmWire works wonderfully under natural stone, tile, laminate, engineered woods, carpet, vinyl, linoleum, & solid hardwood (if you use sleepers).
![]() |
![]() |
|
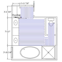
Step 1: Plan your layout and determine the cable direction. Measure about 3" in. inches from the wall, and place strap parallel to the wall. Under toe kick spaces, install the strap 1.5"in. inches to 2" in. inches away from the vanity.
|
Step 2: Cut the strap to length for each side of area to be heated.
|
![]() |
![]() |
|
Step 3: Secure the strap to the subfloor using double-sided tape, glue, or fasteners.
|
Step 4: Fill in each section back and forth with cable, spacing the wire 2.5" or 3" in. inches apart. For additional areas, cut and attach the straps accordingly and begin weaving the wire into that area.
|
![]() |
|
Important: If cables are running greater than 3' or 4'ft. feet across a room, be sure to add another strap to thread through in the center of the area to be heated. |
| Mats or Wire | Supply Wire | Breaker | |||
| VAC | total amps | (AWG*) | qty | type | rating |
| 120 | up to 12 amps | 14 | 1 | single pole | 15 or 20 A |
| 120 | up to 15 amps | 12 | 1 | single pole | 20 A |
| 240 | up to 12 amps | 14 | 1 | double pole | 15 or 20 A |
| 240 | up to 15 amps | 12 | 1 | double pole | 20 A |
* Recommended only. Follow local codes for wire gauge size.
| UPC | 840213195151 |
|---|---|
| Heating Power Output Total | 820 BTU total |
| Heating Power Output per Hour (BTU) | 41 BTU per Sq Ft/Hour @ 3" in. inch spacing |
| EMF (Electro Magnetic Field) | Yes. Verified by Independent Testing Laboratory as ultra low. |
| Ohms Reading (resistance value) | 53-66 |
| Power Lead Wire Gauge | 18 AWG |
| Power Lead Length | 10 Feet |
| Power Lead Type | Armored, NEC color code, Single point connection at 1 corner of mat. No return wire like inferior products |
| Thickness | .110" - .132" (nominal) Shorter cables are thinner. |
| Voltage | 120 VAC |
| Wattage per SF | 12 |
| Spacing of Heating Wire | 2.5" - 3" - 3.5" on center |
| Heated Area Size Covered | 20 |
| Brand Name | WarmWire |
|---|---|
| Safety Listing | UL (Underwriters Laboratory) Listed for U.S. and Canada under UL 1673 and CAN/CSA C22.2 No. 130-03, File No. E185866 |
| Warranty from Manufacturer | 25 year warranty backed by USA Manufacturer since 1873 |
| Spacing between runs 1 | 2.5 |
| Spacing between runs 2 | 3 |
| BTUs/SF/Hr 1 | 49 |
| Watts Per SF 1 | 14.4 |
| Watts Per SF 2 | 12 |
| What's In The Box | WarmWire Spool in Easy to dispense box. Detailed Installation Manual. Installation video online. |
| Amp Draw | 2 |
| Wire Construction | Blue Flexible Polyurethane WaterProof Jacket surrounding 2 ETFE insulated copper heating wires, metal jacket & ground wire drain |
| Total Watts | 240 watts |
| Why Helps | WarmWire = Zero EMFElectromagnetic fields (EMF) are generated by all electrical devices, and the possible dangers of exposure to EMF are still the subject of debate and scientific research. Out of concern for their customers' safety, SunTouch created the first EMF-canceling electric radiant floor heating system in 1993, and to this day they only manufacture and sell floor heating systems that use their patented EMF-canceling design. We provide this EMF information because it is important to some people, not to frighten you or exaggerate any risk like others do. We simply aim to inform you and leave the choice up to you after explaining what we know. Read More Here. |
| Acceptable Floor Coverings | Natural Stone,Tile, Laminate, Engineered Woods, Carpet, Vinyl, Linoleum, Solid Hardwood (if you use sleepers) |
© Warm Your Floor. 2023. All Rights Reserved.
Thanks for subscribing!
This email has already been registered!